Поиск:
 

Подстанции комплектные трансформаторные модернизированные КТПМ- 25

RU-1000 Рейтинг
Поделитесь страницей в Социальных сетях
Подстанции комплектные трансформаторные модернизированные КТПМ- 25
КТПМ-25(100)/27,5/0,4- подстанции трехфазного переменного тока частотой 50Гц, мощностью 25 кВА или 100 кВА, напряжением 27,5 кВ. Подстанции предназначены для электроснабжения линейных железнодорожных потребителей. Подстанции выполняются в двух вариантах: 1 — с заградителем 2 — без заградителя Стандартный ввод/вывод - ВК (воздух- кабель)
Вас также могут заинтересовать

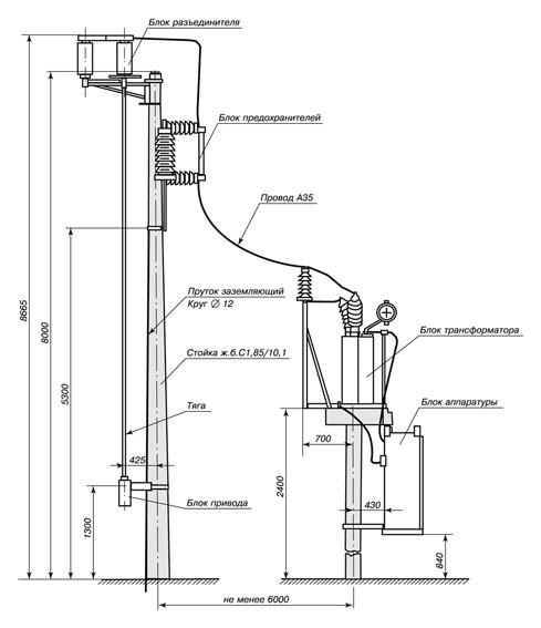
Подстанция комплектная трансформаторная КТПМ 6(10) кВ 25-250 кВА мачтовая (шкафного типа для с/х потребителей)

Подстанция комплектная трансформаторная КТПс-25-250 кВА предназначена для приема, электрической энергии трехфазного переменного тока частотой 50 Гц, номинальным напряжением 6 или 10 кВ и преобразовани

Подстанция комплектная трансформаторная

Комплектные трансформаторные подстанции предназначены для приёма, преобразования и распределения электроэнергии в сетях систем электроснабжения промышленных предприятий, сельских и городских населённы

Подстанция комплектная трансформаторная серии КТП

Подстанции предназначены для приема, преобразования и распределения электрической энергии трехфазного переменного тока частоты 50 Гц напряжением до 10 кВ.

Подстанция комплектная трансформаторная тупикового типа с кабельным или воздушным вводом - КТПМ-ТК(В)

Комплектная трансформаторная подстанция тупикового типа с кабельным или воздушным вводом - КТПМ-ТК(В) (далее КТПМ) наружной установки мощностью 100-400 кВА, напряжением 6/0,4-0,23кВ, предназначена для

Подстанции комплектные трансформаторные модернизированные КТПМ- 250

Подстанции комплектные трансформаторные модернизированные мощностью 250 кВА и 400 кВА на напряжение 27,5 кВ предназначены для электроснабжения линейных железнодорожных потребителей. Вид климатического
Внимание!
Информация по Подстанции комплектные трансформаторные модернизированные КТПМ- 25 предоставлена компанией-поставщиком Воскресенский электромеханический завод, ОАО. Для того, чтобы получить дополнительную информацию, узнать актуальную цену или условия постаки, нажмите ссылку «Отправить сообщение».
Контакты компании
Страна
Россия
Регион
Московская область
Город
Воскресенск
Адрес
Воскресенск, ул. Победы, д. 2
Телефон
+7 (495) 2326725
Сделать запрос
Введите свое имя
Укажите свой Email
Напишите ваш вопрос
Подтвердите согласие